×

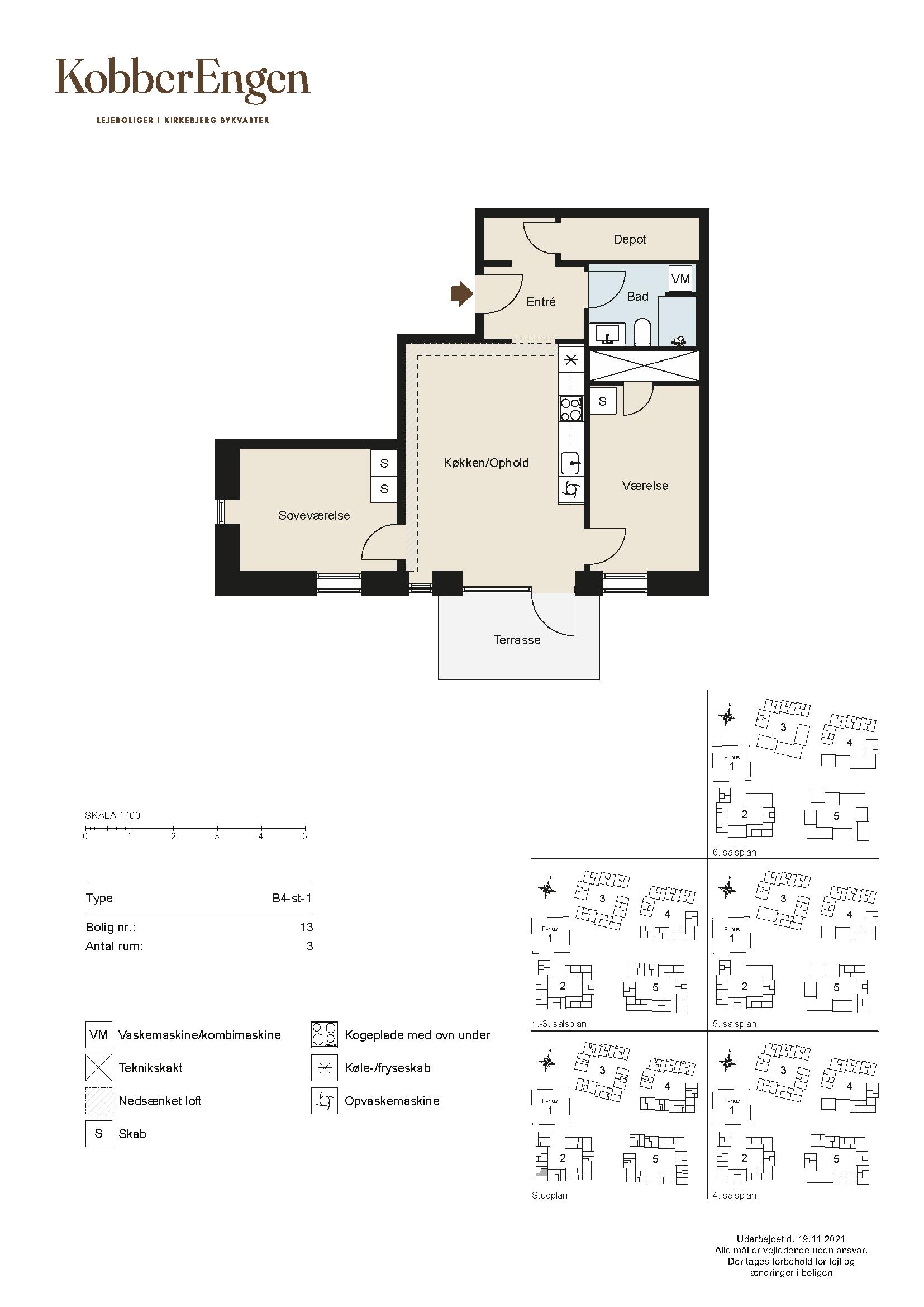
En 3-værelses med hjerterum og harmoni

2869 Brøndby Voltvej 7, st. th.

KobberEngen er et moderne boligområde i Brøndbyvester, hvor hverdagen er tænkt ind i både boliger og omgivelser. Området er indrettet med grønne gårdrum og trygge fællesarealer, der inviterer til både ro og fællesskab. Et oplagt valg for både singler, par og familier, der ønsker en moderne lejebolig i grønne og velplacerede rammer.

Book en personlig fremvisning eller stil dine spørgsmål til os via

Andre lejligheder i området

Vi sidder klar til at hjælpe dig

Ønsker du at vide mere om KobberEngen? Eller ønsker du en privat fremvisning, er du naturligvis altid velkommen til at kontakte os.

Kontakt Mette fra Taurus Ejendomsforvaltning.